Buitenpost , Simke Kloostermanstraat 1  

Vrijstaand woonhuis met zeer veel ruimte en flexibele indelingsmogelijkheden

 

Vraagprijs : € 379.000 kosten koper

 

Dit vrijstaande woonhuis beschikt over een uitzonderlijk ruime opzet. In de jaren ’70 was het pand in gebruik als muziekschool van Buitenpost. Nadien is het verbouwd tot een royaal woonhuis met een grote vrijstaande garage (ca. 9 meter lang) en een aangebouwde overkapping. Het geheel is gelegen op een perceel van 670 m² met een onder architectuur zeer fraai aangelegde tuin.

De woning biedt door haar omvang en indeling diverse gebruiksmogelijkheden. Zo is er ruimte voor onder meer dubbele bewoning, werken aan huis, hobbygebruik of andere aan huis gebonden activiteiten, alsmede de mogelijkheid om de woning naar eigen wens in te delen. Eventuele aanpassingen en gebruiksvormen zijn onder voorbehoud van het geldende bestemmingsplan en benodigde vergunningen.

De ligging is gunstig, nabij het centrum van Buitenpost met alle voorzieningen zoals het nieuwe zwembad, sporthal, winkels en scholen in de directe omgeving. Buitenpost ligt centraal tussen Leeuwarden en Groningen, aan de N355, beschikt over een treinstation en heeft een goede bereikbaarheid. Drachten is binnen circa 20 autominuten bereikbaar.

Indeling

Begane grond
Hal/entree met toilet en trapopgang naar de eerste verdieping.
Woonkamer met open keuken (ca 43 m2).
Bijkeuken met deur naar de achtertuin.
Twee kamers (ca 15m2 en ca 12 m2), geschikt voor diverse gebruiksdoeleinden, waaronder slaap-, werk- of hobbyruimte, waarvan één met een vaste kastenwand.
Badkamer met hoekdouche, vaste wastafel en hangend toilet.

Eerste verdieping
Overloop met trap naar de tweede verdieping.
Vijf slaapkamers (ca 15m2, 13m2, 12m2, 15m2 en 6m2).
Werkhoek.
Badkamer met ligbad, vaste wastafel en toilet.

Tweede verdieping
Slaapkamer en een grote open ruimte met mogelijkheden voor meerdere slaap- of hobbykamers.

Vrijstaande garage: ca. 9,00 x 3,00 meter
Aangebouwde overkapping

Overige informatie

Verwarming via Intergas combiketel (2013)
Woonkamer voorzien van dubbel glas

Overige ruimtes voorzien van enkel glas
Staat van onderhoud: redelijk

Kenmerken
Woonoppervlakte:  239 m²
Perceeloppervlakte: 670 m²
Bouwjaar: 1966

Energielabel: D

Vraagprijs : € 379.000 kosten koper



Let op: Bij de foto's zijn impressies geplaatst om een indruk te geven op welke wijze de woning gemoderniseerd kan worden.

 

Vraagprijs: € 215.000 kosten koper

Burum, Abele Reitzesstraat 10

 

Helft van een dubbel woonhuis met grote vrijstaande garage/schuur.

Aan de rand van Burum staat  deze  degelijk gebouwde en goed onderhouden woning. De woning heeft een bad- en slaapkamer op de begane grond en is dus levensloopbestendig.

Burum ligt op  de grens van Friesland en Groningen. Er is een basisschool, kinderopvang en een dorpshuis. Groningen, Leeuwarden en Drachten liggen op een half uur afstand. Plaatsen als Buitenpost en Kollum liggen zeer nabij.

Indeling

Begane grond: hal/entree met een ruim toilet en de trap naar de eerste verdieping. Woonkamer met half open keuken. De keuken is voorzien van een 5-pits gaskookplaat, een afzuigkap, een oven, een koelkast en een close-in-boiler. Tussengang met toegang tot de slaapkamer (ca 9 m2) en de badkamer. De badkamer heeft een douche en een vaste wastafel. Aangebouwde bijkeuken met de aansluiting van de wasmachine.

Eerste verdieping: overloop, twee ruime slaapkamers (ca 10 en 13m2) met veel bergruimte.

Grote vrijstaande schuur/ garage (ca 30m2) met een gedeeltelijke verdieping. De garage heeft een dubbele deur en een loopdeur. De vloer is van beton.

De woning is rondom voorzien van nieuw dubbel glas (HR++) en heeft spouwmuurisolatie . De kruipruimte is gevuld met Drowa-chips. Op het dak aan de zuidkant liggen 6 zonnepanelen. De woning wordt centraal verwarmd door middel van een CV-ketel (HR 2021).

Bouwjaar: 1969
Woonoppervlakte: ca 85 m2
Perceel: 269 m2

 

Vraagprijs: € 215.000 kosten koper

 

 

Vraagprijs: € 249.000 Kosten Koper

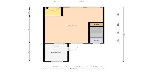
Buitenpost Concourslaan 26

Tussenwoning met een vrijstaande berging en achterom.
In rustige, kindvriendelijke woonwijk gelegen tussenwoning met een vrijstaande fietsenberging en
achterom. Deze tussenwoning staat op een kavel van 162 m2 met een de achtertuin op het zuiden.
Nabij het centrum van Buitenpost met alle voorzieningen (nieuw zwembad, sporthal, winkels en
scholen) in de directe nabijheid. Buitenpost ligt centraal tussen Leeuwarden en Groningen aan de
N355 en heeft o.a. een treinstation. Ook Drachten is op 20 autominuten bereikbaar.
Indeling:
Hal/entree met het toilet en de trap naar de eerste verdieping. Woonkamer. Keuken met de deur
naar de achtertuin.
Eerste verdieping:
Drie slaapkamers (ca 14, 12 en 6.5 m2). Gerenoveerde badkamer met een inloopdouche en een
wastafelmeubel. Overloop met een vaste trap naar de tweede verdieping.
Tweede verdieping:
Slaapkamer (ca 12 m2) en de zolderberging met de cv-opstelling
De woning heeft houten en aluminium kozijnen en is gedeeltelijk voorzien van dubbel glas. De cv-
ketel is uit 2022.
Bij het vaststellen van de vraagprijs is rekening gehouden met het feit dat het onderhoud van de
woning op een aantal punten achterstallig is.
Woonoppervlakte: ca 104 m2
Perceel: 162 m2
Bouwjaar: 1973

 

Vraagprijs: € 249.000,- kosten koper

Vraagprijs: € 419.000,- kosten koper

De Achtkant 44,  9285 VG  Buitenpost

Vrijstaand woonhuis met een aangebouwde berging en aangebouwde garage.
Gelegen aan een riante rustige straat in Buitenpost.

Het huis is op een ruime kavel gelegen en is omgeven door veel groen, bomen en vrijstaande woningen.


Buitenpost heeft een NS station en ligt centraal en is goed bereikbaar ten opzichte van bijvoorbeeld Drachten, Leeuwarden en Groningen. 

Er is een nieuw overdekt zwembad, winkels en supermarkten en alle noodzakelijke voorzieningen zoals een medisch centrum, diverse sportscholen en een bibliotheek zijn aanwezig.

Naast een school voor voortgezet onderwijs zijn er diverse basisscholen, kinderdagverblijven en kinderopvangcentra.

 

Het woonhuis staat op een perceel van 730 m2 met een tuin rondom.
Indeling:
Hal/entree met toilet en trap naar de eerste verdieping. Woonkamer met halfopen keuken. De
keuken is voorzien van een dubbele gootsteen, een inductie kookplaat en afzuigkap.
Slaap/werkkamer. Bijkeuken met de cv-ketel, de aansluitingen voor witgoed en een deur naar de
aangebouwde garage.
Eerste verdieping: drie ruime slaapkamers, waarvan één met een balkon. Badkamer met ligbad en dubbele vaste wastafel in een meubel. Overloop met vide. Vlizotrap naar de zolder (met daglicht).
De woning is gedeeltelijk voorzien van dubbel glas.


Woonoppervlakte: ca 132 m2
Inhoud: ca 605 m3
Perceel: 730 m2
Bouwjaar: 1978
Energielabel: C

Vraagprijs: € 419.000,- kosten koper

Bezichtiging De Achtkant 44 Buitenpost plannen

 

Vraagprijs: € 269.000,- kosten koper

 

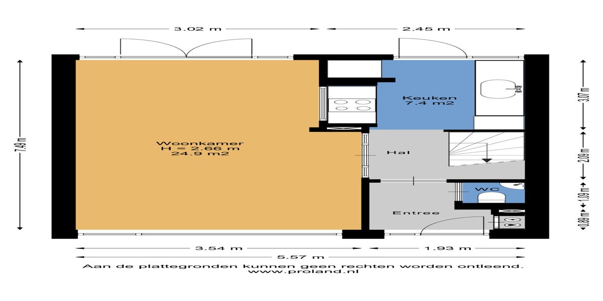
Bernhardlaan 29, 9285 TT Buitenpost

 

Twee-onder-één kap woonhuis

Op een mooie, ruime stand gelegen twee-onder-één kap woonhuis met een  aangebouwde extra diepe garage. Deze woning staat aan een doorgaande weg door Buitenpost met veel openbaar groen.

Buitenpost ligt centraal tussen Leeuwarden en Groningen en binnen 30 minuten bent u in het centrum van Drachten. Buitenpost heeft een NS-station met een zeer frequentie dienstregeling naar Leeuwarden en Groningen, een splinternieuw overdekt zwembad en alle overige voorzieningen. (bibliotheek, diverse basisscholen en een grote school voor voortgezet onderwijs).

Het woonhuis staat op een perceel van 234 m2 met een omsloten achtertuin.

Indeling.
Hal/entree met toilet en trap naar de eerste verdieping. Woonkamer met half-open keuken. De keuken is voorzien van een 4-pits gaskookplaat, afzuigkap, oven en een vaatwasser. Bijkeuken met een deur naar de garage.

Eerste verdieping: vier slaapkamers. Badkamer met een douche, vaste wastafel en een tweede toilet. Overloop met een vlizotrap naar de zolder (met daglicht).
Ruime aangebouwde garage.

De woning is op de begane grond  voorzien van dubbel glas.

Woonoppervlakte: ca 98 m2
Inhoud: ca 450 m3
Perceel: 295 m2
Bouwjaar: 1978
Energielabel: C

 

Vraagprijs: € 269.000,- kosten koper

 

Bezichtiging Bernhardlaan 29 Buitenpost plannen 

Vraagprijs: € 390.000 kosten koper.

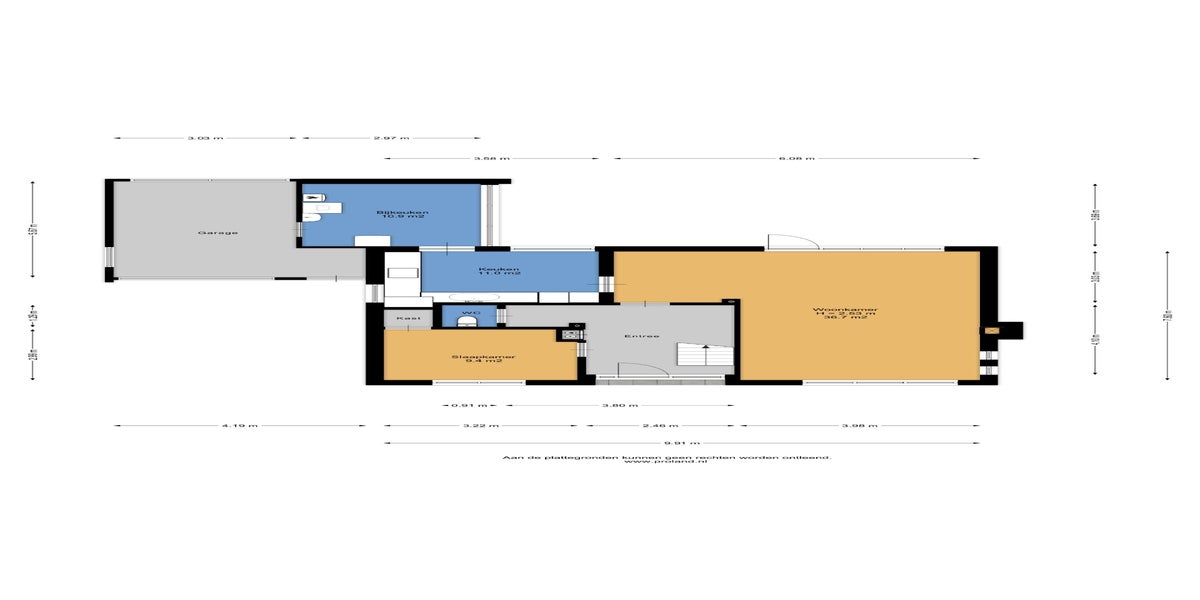
Pijlkruid 9, 9285 LL  Buitenpost

Op een mooie stand gelegen ruim, traditioneel gebouwd vrijstaand woonhuis met aangebouwde bijkeuken en garage. De woning heeft een goede ligging in een woonwijk tegenover een vijver- en groenpartij.

Buitenpost ligt centraal tussen Leeuwarden en Groningen en binnen 30 minuten bent u in het centrum van Drachten. Buitenpost heeft een NS-station met een zeer frequentie dienstregeling naar Leeuwarden en Groningen, een splinternieuw overdekt zwembad en alle overige voorzieningen. (bibliotheek, diverse basisscholen en een grote school voor voortgezet onderwijs).

Indeling: hal/entree met een toilet en de trap naar de eerste verdieping. Woonkamer met half open keuken. De keuken is voorzien van een 4-pits kookplaat, een afzuigkap en een koelkast.
Aangebouwde bijkeuken met een deur naar de achtertuin en een deur naar de ruime aangebouwde garage.

Eerste verdieping: vier ruime slaapkamers (2 x 9m2 en 2x 7m2), een badkamer met een douchecabine, een vaste wastafel en een tweede toilet. Overloop met een vide en een vlizotrap naar de zolder over de gehele woning.

Vrijstaand tuinhuis.

De woning is gebouwd in 1995 en is volledig geïsoleerd. Het huis heeft houten kozijnen met rondom dubbel glas.
CV-ketel Nefit Trendline 2017

Woonoppervlakte: ca   120  m2
Perceel: 461 m2
Bouwjaar: 1995

 

Vraagprijs : € 165.000 kosten koper

Flaaks-Ikker 16 
9295 KV Westergeest

Starters opgelet!

Te koop tussenwoning met achterom in Westergeast.

Op een gewilde stand in het dorp Westergeast gelegen tussenwoning met achterom.
Westergeast is een gezellig klein dorp (ca 600 inwoners) in de Friese Wouden en ligt zeer nabij grote plaatsen als Kollum en Buitenpost.

Indeling:
Begane grond: Hal/entree met de meterkast. Z-vormige woonkamer met open keuken. De keuken is voorzien van een 4-pits kookplaat en een afzuigkap. De woonkamer heeft een ruime vaste kast. Vanuit de keuken is de bijkeuken bereikbaar, waar zich de aansluitmogelijkheid bevindt voor de wasmachine e.d. Tussenhal met het toilet en de trap naar de eerste verdieping.

Eerste verdieping: drie slaapkamers (2.85x3.25), (4.10x3.00) en (2.10x2.45. Eenvoudige badkamer (1.55x1.80) met een douche en een vaste wastafel. Overloop met een vlizotrap naar de zolder over de gehele woning. Op de zolder bevindt zich de cv-ketel.

De woning is nagenoeg geheel voorzien van dubbel glas en heeft een cv-installatie met radiatoren. De ketel is een Remeha  HR uit 2022. Het platte dak van de bijkeuken is in 2020 geheel vernieuwd.

De woning wordt gestoffeerd opgeleverd.

 

Bouwjaar: 1984
Woonoppervlakte: ca 85 m2
Perceeloppervlakte: 129 m2

 

Vraagprijs : € 165.000 kosten koper

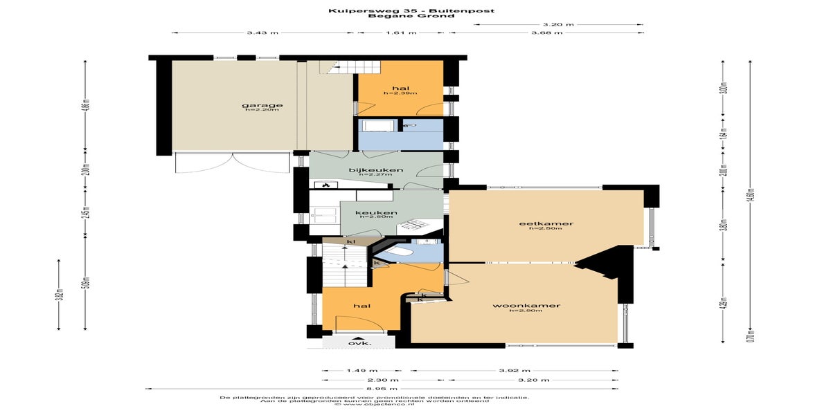
Kuipersweg 35 Buitenpost

Vrijstaand woonhuis met aangebouwde garage.

Op een mooie stand aan de Kuipersweg 35 gelegen vrijstaand woonhuis. Het is een zeer gewild en
sfeervol jaren 30 woonhuis met een aangebouwde garage. De woning staat op een perceel van 350
m2 met een voor-, zij en achtertuin.
Het huis is eind jaren 80 geheel gerenoveerd waarbij veel aandacht is besteed aan energiebesparende maatregelen. Het huis is zelfs voor bereid op het installeren van een
warmtepomp. De gehele begane grond is voorzien van vloerverwarming en er is zelfs muurverwarming in de wand tussen de keuken en de woonkamer. De diverse gedeelten van het huis voorzien van eigen thermostaten, zodat deze delen los van elkaar te verwarmen zijn.

Indeling
Begane grond: hal/entree met een toilet en de trap naar de eerste verdieping. Ruime woonkamer
met een voor- en achtergedeelte. Deze gehele ruimte is voorzien van een Noorse leisteen vloer. Half
open keuken. De keuken heeft een 4 pits kookplaat, een afzuigkap, een vriezer en koelkast en een
oven. Vanuit de keuken is een ruime kelder bereikbaar. Aangebouwde bijkeuken met een separate
douche, waar ook de wasmachine en droger geplaatst zijn. In de bijkeuken is eveneens de cv-ketel geplaatst en is ruimte voorbereid voor het plaatsen van een warmtepomp.

Vanuit deze bijkeuken is de aangebouwde garage bereikbaar. In de garage bevindt zich een trap naar de eerste verdieping waar een ruime hobbykamer te vinden is. In deze (hobby)kamer staat de zonneboiler. Via een
vlizotrap is een ruime zolder over de gehele garage bereikbaar.

Eerste verdieping: ruime overloop met veel lichtinval door de dakkapel die hier geplaatst is. Drie slaapkamers. Twee aan de achterzijde en één aan de voorzijde. Badkamer met een ligbad, vaste wastafel en tweede toilet. De overloop heeft een trap naar de (afsluitbare) tweede verdieping.

Tweede verdieping: slaap/werkkamer en bergzolder.
De woning heeft gedeeltelijk dubbel glas, voorzetramen en enkel glas. Het dak en de muren zijn
geïsoleerd. De cv-ketel (Nefit Pro Line HR) is van 2015.
Buitenpost ligt centraal tussen Leeuwarden en Groningen en binnen 30 minuten bent u in het centrum van Drachten. Buitenpost heeft een NS-station met een zeer frequentie dienstregeling naar Leeuwarden en Groningen, een splinternieuw overdekt zwembad en alle overige voorzieningen.
(bibliotheek, diverse basisscholen en een school voor voortgezet onderwijs).
Woonoppervlakte: ca 127 m2 (excl. garage)
Perceel: 350m2
Bouwjaar: 1939

Vraagprijs: € 324.000 kosten koper

Binnendijk 53 
9256HL Ryptsjerk

 

Landelijk wonen op 6 km van Leeuwarden tussen de natuurgebieden. Op korte termijn beschikbare stelpboerderij met grote schuur en werkplaats/

lytshûs (kleinveestal), gelegen nabij de dorpskern van Ryptsjerk. Deze fraaie woonboerderij ligt op een zeer ruim perceel van 3810 m2 met een diepe voortuin. Aan beide zijkanten van de boerderij is ruimte voor terrassen of een ruime moestuin.

Het omheinde achterterrein, thans grasland, biedt bv. de mogelijkheid tot het houden van kleinvee of paarden.

Het exterieur van de boerderij verkeert in een uitstekende staat. Tussen 2001 en 2014 zijn alle rieten daken vervangen en het pannendak van het voorhuis is vernieuwd. De boerderij heeft diverse authentieke kenmerken: glas-in-loodramen bij de entree, het balkenplafond en de als kasten in gebruik zijnde bedsteden in de ruime woonkamer. De keuken en het sanitair zijn nog deels in originele staat.

De totale vloeroppervlakte van de boerderij is ca. 645 m2, het woongedeelte neemt hiervan ca. 257 m2 in.

Enkele jaren geleden is de zuidgevel van de schuur, de oude koeienstal,geheel vernieuwd en voorzien van drie dubbele openslaande deuren. Voor deze verbouwing is een bouwvergunning verleend die een interne verbouwing van ca. 88 m2 tot woonruimte toestaat.

Doordat er op de begane grond een ruime slaapkamer en badkamer zijn, is de boerderij ook geschikt voor mensen die gelijkvloers willen wonen.

Indeling woongedeelte

Begane grond: zij-entree, ruime hal met de meterkast, toilet en de trap naar de eerste verdieping. Ruime woon/eetkamer en keuken.

Tussenhal met de badkamer, voorraadkast en toegang tot de kelder.

Slaapkamer met ruime inloopkast.

Tussenhal die verbinding geeft tot de nieuwe woonruimte.

Eerste verdieping: Ruime overloop. Drie slaapkamers, waarvan één met een inloopkast en één met dubbele inbouwkasten.

Het woongedeelte en de zuidgevel met openslaande deuren zijn voorzien van dubbel glas. Het woongedeelte heeft centrale verwarming door middel van radiatoren. 

De cv-ketel is een HR ketel Vaillant uit 2017. (eigendom)

 

Woonoppervlakte: ca. 257 m2

Overige inpandige ruimte: ca. 260 m2

Externe bergruimte:83  m2

Perceel: 3810 m2

Bouwjaar: 1919

Vraagprijs: € 624.500,-- kosten koper

Gorredijksterweg 26 Jubbega

Helft van een dubbel woonhuis.


Aan een invalsweg van Jubbega gelegen helft van een dubbel woonhuis met twee vrijstaande tuinhuisjes/blokhutten.
Deze woning ligt op een zeer ruim perceel van 773 m. De tuin is relatief smal maar heel diep.
Hierdoor is een ware wandeltuin ontstaan met vele mogelijkheden, zoals het maken van een
eigen groentetuin. Het perceel grenst aan de achterzijde en de oostzijde aan een weiland, waardoor het uitzicht geheel vrij en weids is. In de tuin staan twee blokhutten. één is geheel
geïsoleerd en voorzien van elektriciteit. Afmeting 3.30m x 3.25m. De andere blokhut is 1.75 x 2.25m.

Door de ligging en de indeling van de tuin is het hier wijds en rustig wonen met het ultieme gevoel van privacy. De tuin is bereikbaar vanuit de bijkeuken in het achterhuis en
vanuit de zijkant van de woning.

Indeling Begane grond:
Zij-entree met de trap naar de eerste verdieping. Woonkamer met voldoende ruimte voor het realiseren van een werk- dan wel speelhoek en met toegang tot de kelder met voldoende
ruimte voor voorraad etc.. Ruime en gezellige woonkeuken met een 5-pits kookplaat, oven, vaatwasser en afzuigkap.
Gang, badkamer met een ligbad, douche-hoek en wastafel. Separaat toilet. Bijkeuken met deur naar de achtertuin.
Eerste verdieping:
Vier slaapkamers. Overloop met een vlizotrap naar de zolder.
De woning is geheel voorzien van dubbel glas en centrale verwarming (huurketel 2019).

Karakteristieke woning met nog voldoende mogelijkheden voor eigen invulling.

Bouwjaar: 1935
Woonoppervlakte: ca 130 m
Perceel: 773 m2
Vraagprijs € 295.000 kosten koper


Leeuwarden, Van Cronenburchstraat 20
Eindwoning

Drachten, Hooizolder 12 
Tussenwoning met aangebouwde berging.